- Woonoppervlakte
- Circa 193 m²
- Perceeloppervlakte
- Circa 614 m²
- Bouwjaar
- Gebouwd in 2020
- Aantal kamers
- 5 kamers (4 slaapkamers)
***WONINGWEBSITE***
Deze woning heeft een eigen website. Download de brochure en klik op de link om naar de website te gaan!
MODERN, DUURZAAM EN VRIJSTAAND WONEN IN DIEVER
In de jonge, geliefde nieuwbouwwijk “Kalterbroeken” staat deze riante, moderne en energiezuinige vrijstaande woning uit 2021. Een woning die uitblinkt in ruimte, comfort en afwerking – met een royaal perceel van 614 m² en een vrij uitzicht aan de voorzijde. Hier geniet je van het beste van twee werelden: de rust van het Drentse brinkdorp Diever en het comfort van eigentijds wonen.
Je komt binnen in een stijlvolle hal met luxe toilet, voorzien van fontein en urinoir. Vervolgens opent de lichte, royale woonkamer met schuifpui naar de tuin zich – een heerlijke leefruimte waar binnen en buiten naadloos in elkaar overgaan.
De open keuken vormt het hart van het huis: modern ingericht met een kook-/spoeleiland en bar, en uitgerust met alle denkbare en hoogwaardige AEG-apparatuur. Aansluitend bevindt zich een praktische bijkeuken met keukenblok en extra opbergruimte. Vanuit hier is de volledig geïsoleerde garage met bergzolder en vloerverwarming bereikbaar – een veelzijdige ruimte die eenvoudig kan worden omgevormd tot kantoor, hobbyruimte of slaapkamer op de begane grond.
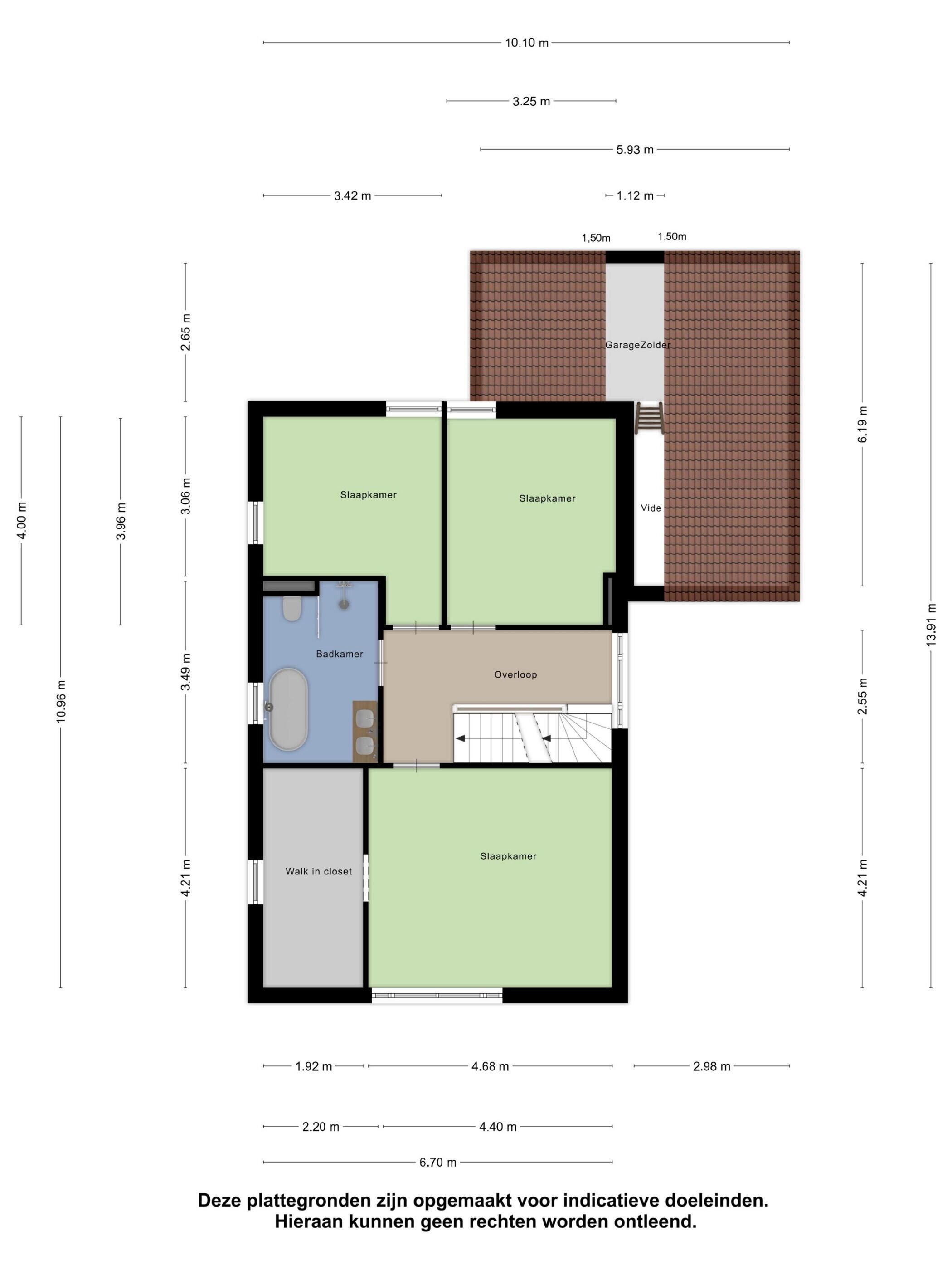
Op de eerste verdieping bevinden zich drie royale slaapkamers, waaronder de master bedroom met inloopkast. De modern afgewerkte badkamer met vloerverwarming heeft een inloopdouche, ligbad, tweede toilet en een wastafelmeubel met dubbele waskom. Dankzij vloerverwarming en een designradiator geniet je hier van optimaal comfort.
Ruimte en mogelijkheden kenmerken ook de bovenste verdieping. Met dakraam, witgoedaansluitingen en technische installaties is deze verdieping ideaal als berging maar biedt ook volop mogelijkheden voor het realiseren van extra slaapkamers, werk- of hobbyruimte.
Rondom de woning ligt een verzorgde, zonnige tuin met volop privacy. Aan de voorzijde is op de ruime oprit plaats voor meerdere auto’s.
Deze woning is uiterst duurzaam met energielabel A++, dankzij 30 zonnepanelen, uitstekende dak-, muur- en vloerisolatie, een moderne luchtwarmtepomp met 300L boilervat voor warm water, HR++ beglazing, vloerverwarming op de begane grond en in de badkamer, en een waterontharder.
Kortom: een moderne, energiezuinige vrijstaande woning met vrij uitzicht, volop licht, ruimte en comfort, gelegen op een toplocatie dichtbij alle voorzieningen.
***HIGHLIGHTS***
- Bouwjaar 2021
- Vrijstaande woning op 614 m² eigen grond
- Riant woonoppervlak van 193 m²
- Luxe open keuken met kookeiland en hoogwaardige AEG-apparatuur
- 3 ruime slaapkamers en moderne badkamer
- Bijkeuken en geïsoleerde, verwarmde garage met bergzolder (geschikt voor kantoor of slaapkamer)
- Ruime oprit met plaats voor meerdere auto's
- Zonnige tuin met vrij uitzicht
- 30 zonnepanelen, waterontharder en uitstekende isolatie
- Moderne verwarmingsinstallatie (luchtwarmtepomp en boilervat)
- Gedeeltelijk vloerverwarming
- Energielabel A++ Lees de volledige omschrijving
Overdracht
- Vraagprijs
- € 775.000 k.k.
- Status
- Beschikbaar
- Aanvaarding
- In overleg
Bouw
- Object type
- Eengezinswoning, vrijstaande woning
- Soort bouw
- Bestaande bouw
- Bouwjaar
- 2020
- Soort dak
- Zadeldak bedekt met pannen
Oppervlakte en inhoud
- Woonoppervlakte
- 193 m²
- Perceeloppervlakte
- 614 m²
- Inhoud
- 795 m³
Indeling
- Aantal kamers
- 5 kamers (4 slaapkamers)
- Aantal badkamers
- 1 badkamer en 1 apart toilet
- Badkamervoorzieningen
- Dubbele wastafel, inloopdouche, ligbad, toilet, vloerverwarming, en wastafelmeubel
- Aantal woonlagen
- 3 woonlagen
- Voorzieningen
- Dakraam, glasvezelkabel, mechanische ventilatie, natuurlijke ventilatie, schuifpui, en zonnepanelen
Energie
- Energielabel
- A
- Energielabel registratie
- 08-11-2020
- Isolatie
- Kierdichting en volledig geïsoleerd
- Verwarming
- Gedeeltelijke vloerverwarming
- Warm water
- Elektrische boiler
Buitenruimte
- Ligging
- Beschutte ligging, in bosrijke omgeving en in woonwijk
- Tuin
- Tuin rondom
Bergruimte
- Schuur / berging
- Vrijstaande houten berging
- Voorzieningen
- Elektra
Garage
- Soort garage
- Aangebouwde stenen garage
- Capaciteit
- 1 auto
- Voorzieningen
- Vliering, elektra en verwarming
- Isolatie
- Volledig geïsoleerd
Parkeergelegenheid
- Soort parkeergelegenheid
- Op eigen terrein
Energieverbruik in Diever
Energielabel deze woning
Energielabel A
Publicatie energielabel: 08-11-2020
Stroomverbruik per jaar
(Gemiddelde vrijstaande woning in Diever)
Gasverbruik per jaar
(Gemiddelde vrijstaande woning in Diever)
* Cijfers zijn afkomstig van het CBS en bedoeld als indicatie en kunnen verschillen voor deze woning
Indicatie hypotheeklasten
Eigen inleg:
Spaargeld / overwaarde
Rente:
Laagste 10-jaars rente
Laagste 10-jaars rente
2,75% - Centraal Beheer Groen... - NHG
3,05% - Centraal Beheer Groen... - 80%
Laagste 20-jaars rente
3,23% - Argenta Groen Hypothee... - NHG
3,44% - Argenta Groen Hypothee... - 80%
Laagste 30-jaars rente
3,4% - Argenta Groen Hypotheek... - NHG
3,61% - Argenta Groen Hypothee... - 80%
Hypotheek:
Bruto maandlasten: € 0 p/m
Netto maandlasten: € 0 p/m
Hoe berekenen we dit?
Het rentepercentage is gebaseerd op de laagste 10 jaars vaste rente voor één hypotheekdeel. De vermelde rente (3.05% zonder NHG) is gecontroleerd op 24-10-2025. Deze berekening is gebaseerd op een annuïteitenhypotheek die volledig wordt afgelost, waarbij de maandlasten gedurende de gehele looptijd gelijk blijven. De werkelijke rente en netto maandlasten kunnen variëren, afhankelijk van uw persoonlijke situatie en de hypotheekverstrekker. Raadpleeg een financieel adviseur voor een nauwkeurige berekening en advies. Aan deze berekening kunnen geen rechten worden ontleend; het dient enkel als indicatie.
Documentatie
Kadastrale kaart
Leefomgeving
Kadaster-kadastrale-kaart
Kadaster-eigendomsinformatie-ano
Akte-van-levering-ano
Vragenlijst-deel-b-woning
Lijst-van-zaken
Energielabel
Meetrapport
Plattegronden PDF
WOZ waarderapport
BAG uittreksel
Brochure
Bezichtiging
Bod uitbrengen
Waardebepaling
Zoekopdracht
Alles downloaden
Zonnegrenzen bekijken
Inwoners in Diever
Cijfers voor postcodegebied 7981
- Totaal aantal inwoners
- 2490 inwoners
- Mannen
- 47%
- Vrouwen
- 53%
Inwoners in Diever
Cijfers voor postcodegebied 7981
- tot 15 jaar
- 13%
- 15 tot 25 jaar
- 8%
- 25 tot 35 jaar
- 15%
- 45 tot 65 jaar
- 30%
- 65 en ouder
- 34%
Huishoudens in Diever
Cijfers voor postcodegebied 7981
- Eenpersoons zonder kinderen
- 35%
- Meerpersoons zonder kinderen
- 39%
- Huishoudens zonder kinderen
- 74%
Huishoudens in Diever
Cijfers voor postcodegebied 7981
- Huishoudens met één kind
- 4%
- Huishoudens met meerdere kinderen
- 22%
- Huishoudens met kinderen
- 26%
Woningen in Diever
Cijfers voor postcodegebied 7981
- Woningen voor 1945
- 16%
- Woningen tussen 1945 en 1965
- 12%
- Woningen tussen 1965 en 1975
- 15%
- Woningen tussen 1975 en 1985
- 13%
- Woningen tussen 1985 en 1995
- 22%
Woningen in Diever
Cijfers voor postcodegebied 7981
- Woningen tussen 1995 en 2005
- 9%
- Woningen tussen 2005 en 2015
- 8%
- Woningen na 2015
- 6%
- Huurwoningen
- 30%
- Koopwoningen
- 70%
Overige in Diever
Cijfers voor postcodegebied 7981
- Gemiddelde WOZ waarde
- € 265.000,-
- Personen onder de 65 met uitkering
- Niet beschikbaar
Overige in Diever
Cijfers voor postcodegebied 7981
- Adressen per km²
- 247
- Stedelijkheid (schaal 1 op 5)
- 20%
Hemme Van Tilburg Makelaars & Taxateurs
Indien u vragen heeft of u wilt een bezichtiging inplannen, dan kunt u gebruik maken van het formulier hiernaast. Er zal daarna op korte termijn contact met u worden opgenomen.
Contact opnemen
Hemme Van Tilburg Makelaars & Taxateurs
Op zoek naar een nieuwe woning of overweegt u uw huis te verkopen? Bij Hemme Van Tilburg Makelaars & Taxateurs begeleiden we u op een persoonlijke en ontspannen manier bij zowel de aan- als verkoop van uw woning. Ook voor huur en verhuur kunt u bij ons terecht. Daarnaast bieden we diverse diensten aan die bijdragen aan zorgeloos en comfortabel wonen.
Met een praktische en betrokken aanpak zetten we ons in voor het beste resultaat, waarbij uw wensen centraal staan. Of u nu een woning zoekt of wilt verkopen – wij staan voor u klaar!
✔ Persoonlijke begeleiding
✔ Jarenlange ervaring
✔ Flexibel en doeltreffend
✔ Snel en accuraat
Landelijke dienstverlening vanuit onze kantoren in Meppel en Amstelveen.
Heeft u een vraag, wilt u een gratis waardebepaling van uw woning of een vrijblijvende afspraak? Neem gerust contact met ons op!
Neueste Bewertungen
-
Rik
Sehr feiner und nachdenklicher Immobilienmakler. Wir bekamen via WhatsApp schnell Antworten auf all unsere Fragen, auch am Wochenende! Auch...
-
Veenhuizerhof 8
Guter Kontakt. Ist sehr gute Vermittlerin gewesen. War sich über den Markt und dem damit verbundenen Verkaufspreis im Klaren. Hat unsere Erw...
-
Meerboomweg 141
Ausgezeichnet. Der Immobilienmakler ist sehr aktiv, informiert kompetent und pünktlich, schaltet sich schnell ein und weiß Extrempositionen...